- забудовник Житлобуд-2
- 20 поверхів
- 2 секції
- 280 квартир
- висота стелі 2.8м
- здача 4 квартал 2018 року
- клас Економ+
- автономне опалення у будинку
- Вартість машиномісць у підземному паркінгу від 330 000 грн. до 390 000 грн.



⚡️Первый корпус ЖК Дуэт находится по адресу ул. Целиноградская 58-Б. Дом сдан в 4 квартале 2018 года. В доме большая часть квартир распроданы, но ремонты еще идут. Фасад утеплен и окрашен в бело-красные цвета.

⚡️Дом находится в достаточно молодежном месте, вокруг много общежитий со студентами, в том числе и иностранных. По обе стороны дома есть наземная парковка для жителей и гостей. Также прямо возле дома есть футбольное поле с искусственным покрытием, оборудовано дренажами. То есть даже во влажную погоду играть на нем будет вполне приемлемо. Рядом с домом есть детская площадка и другие новострои ЖК Молодежный, Алексеевские Акварели и новострой по адресу Целиноградская 50-Е.



⚡️Во многих квартирах ремонт еще не закончен. Поэтому, живя в доме, можно услышать шум дрели или перфоратора 😄 Также, из-за этого лифт оборудован защитными досками. Внизу при входе сидит консьерж, который с радостью ответит на все ваши вопросы.

⚡️Вход в подъезд достоин внимания. Открытый, широкий проход с остеклением - вы всегда видите, куда вы заходите и кто внутри. Более того, за счет остекления в подъезде достаточно светло, что можно увидеть на фото. Что не маловажно - подъезд идет в ровень с землей - поэтому инвалидам будет значительно проще попасть внутрь.
Вход во 2-ую секцию





Вид из окна


До метро Алексеевская от жилого комплекса идти 3-4 минуты.

⚡️Недалеко находится станция метро Алексеевская, пешком 4 минуты. Также супермаркеты АТБ и Basket рядом.


Широкий выбор продуктовых магазинов от небольшого Посада до нового реконструированного АТБ, бонусом идет Дигма в соседнем доме :)

Тренажерные залы.

ЖК Дуэт отлично подойдет для семейной жизни так как в пешей доступности до 10 минут тут есть аж 6 школ.

Также в округе 4 детских садика.

Ближайшее отделение Новой почты через дорогу.

Общежития :) Это можно назвать минусом так как могут быть шумные студенты.

До метро Университет (Центр города) можно добраться за 12-15 минут с учетом небольших пробок.


Стоимость ЖК Дуэт. Если вы хотите купить квартиру в ЖК Дуэт, то за 1м2 в строительном состоянии вы можете заплатить от 870$, а за красивую квартиру с ремонтом просят 1400-1600$ за 1м2.
Арендовать квартиру в этом жилом комплексе можно стартуя от 420 долларов за однокомнатную квартиру вплоть до 750-850 долларов за красивую большую квартиру.

Планировки ЖК Дуэт. На самом деле различных планировок в этом доме очень много. Мы приведем основные варианты.
Однокомнатные: 47, 48, 49, 50, 56м2
Двухкомнатные: 65, 66, 68, 71, 72, 74, 79, 81, 83, 86м2
Трехкомнатные: 95, 97, 99м2;
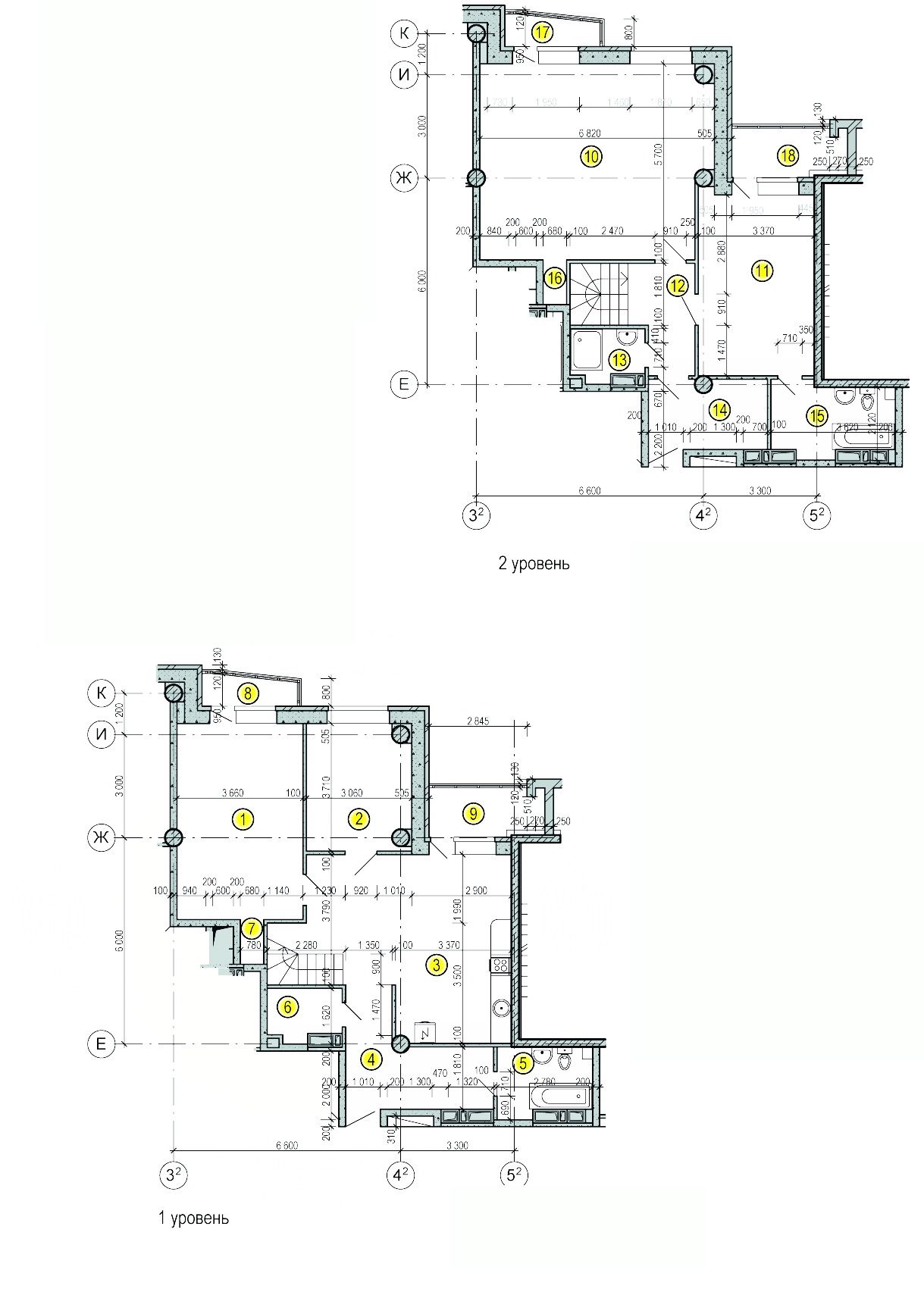
Двухуровневые: 95, 100, 110, 135, 144, 160, 169, 194м2;
1к кв, 46м2

1к кв, 48м2

1к кв, 50м2

1к кв, 56м2

2к кв, 65м2

2к кв, 70м2

2к кв, 73м2

2к кв, 85м2

3к кв, 95м2

3к кв, 98м2

2-х уровневая квартира, 95м2

2-х уровневая квартира, 165м2


Отзывы ЖК Дуэт. Отзывов о доме пока не очень много, но в основном все положительные.



⚡️Сам комплекс довольно таки симпатично вписывается в инфраструктуру района, хотя и смотрится достаточно массивно.

⚡️Территория никак не ограждена, многие сочтут за отрицательный момент, но мы же движемся в Европу 🙂






